Каркасы для видеостен

Эта линейка продуктов отлично подойдет для комплексных решений ваших задач, обеспечит отличную визуальную презентацию с учетом интерьера и ваших личных пожеланий. Строение каркаса видеостен позволяет быстро проводить диагностику, монтаж и ремонт видео-панелей.

Каркасы для видеостен

Направление сортировки
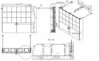
  • Стойка для LED-видеостены Mitsubishi 6х3 на тумбу

    Стойка для LED-видеостены Mitsubishi 6х3 на тумбу

    Цена: по запросу
    ID на сайте:
  • Стойка для LED-видеостены Mitsubishi 6х3 напольная, с опциональным креплением к стене
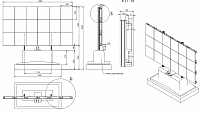
  • Напольный каркас для светодиодного экрана

    Напольный каркас для светодиодного экрана

    Цена: по запросу
    ID на сайте:
    Под заказ
  • Каркас распорный для LCD дисплеев TEGAR WMS FC

    Каркас распорный для LCD дисплеев TEGAR WMS FC

    Цена: по запросу
    ID на сайте: 2984
    Под заказ
  • Каркас напольный для видеостены полного выдвижения TEGAR WMS F PO 2x2
    Под заказ